PROJECT NAME

VERY GOOD PROJECT 87

 

PURPOSE

Private, residential

 

LOCATION

Vilnius, Lithuania

 

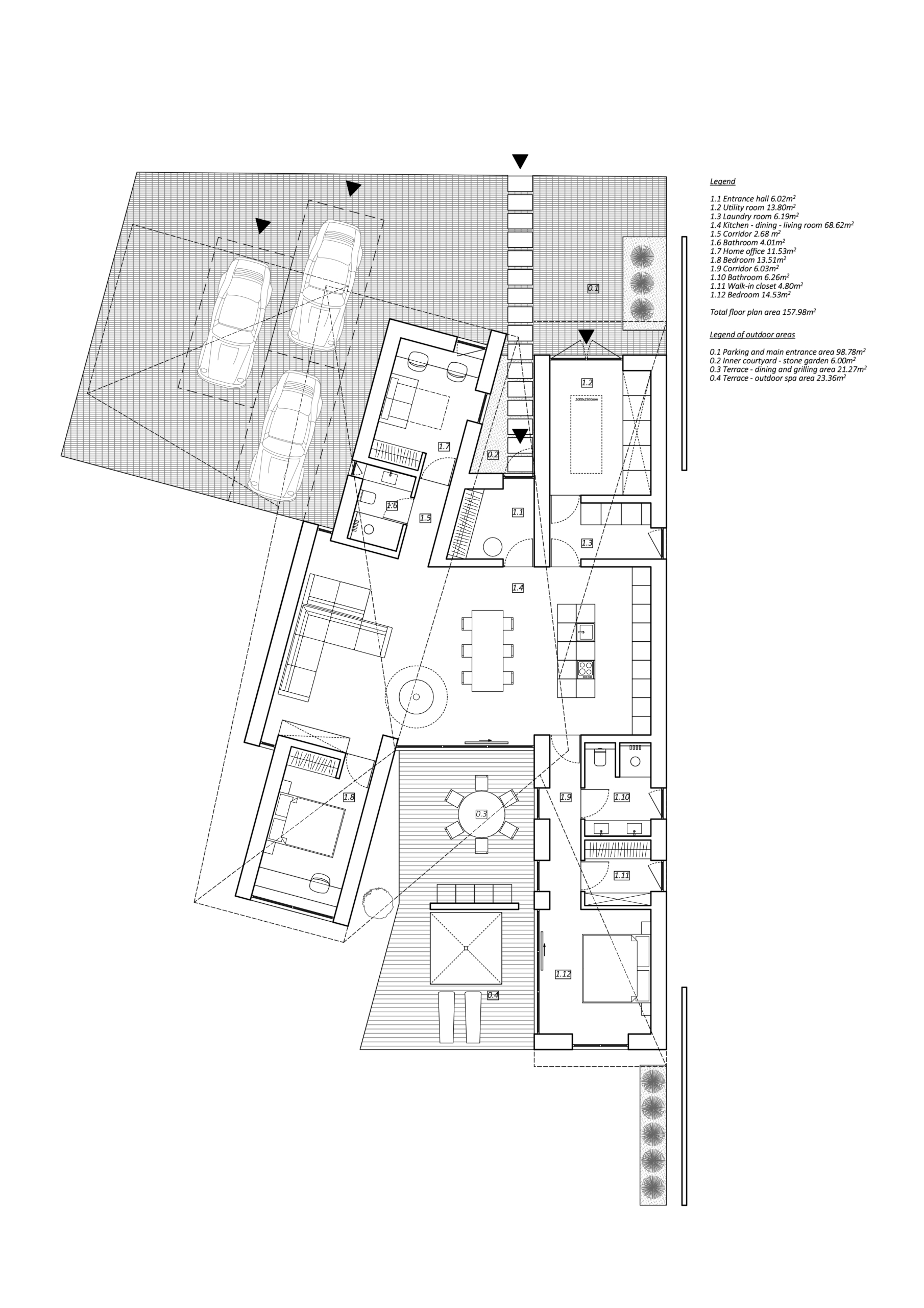
AREA

158 m2

 

YEAR OF COMPLETION

2025 – under construction

 

DESCRIPTION

Private villa in Vilnius.