PROJECT NAME
VERY GOOD PROJECT 09
TYPE
Private, residential
LOCATION
PAUPYS, Vilnius, Lithuania
AREA
92 m2
YEAR OF COMPLETION
2018-2020
PHOTOGRAPHY BY
Antanas Štrimaitis
APRAŠYMAS
Delicate, minimal and monochromatic interior, complemented by warm, earthy tones accompanied with golden and copper details.
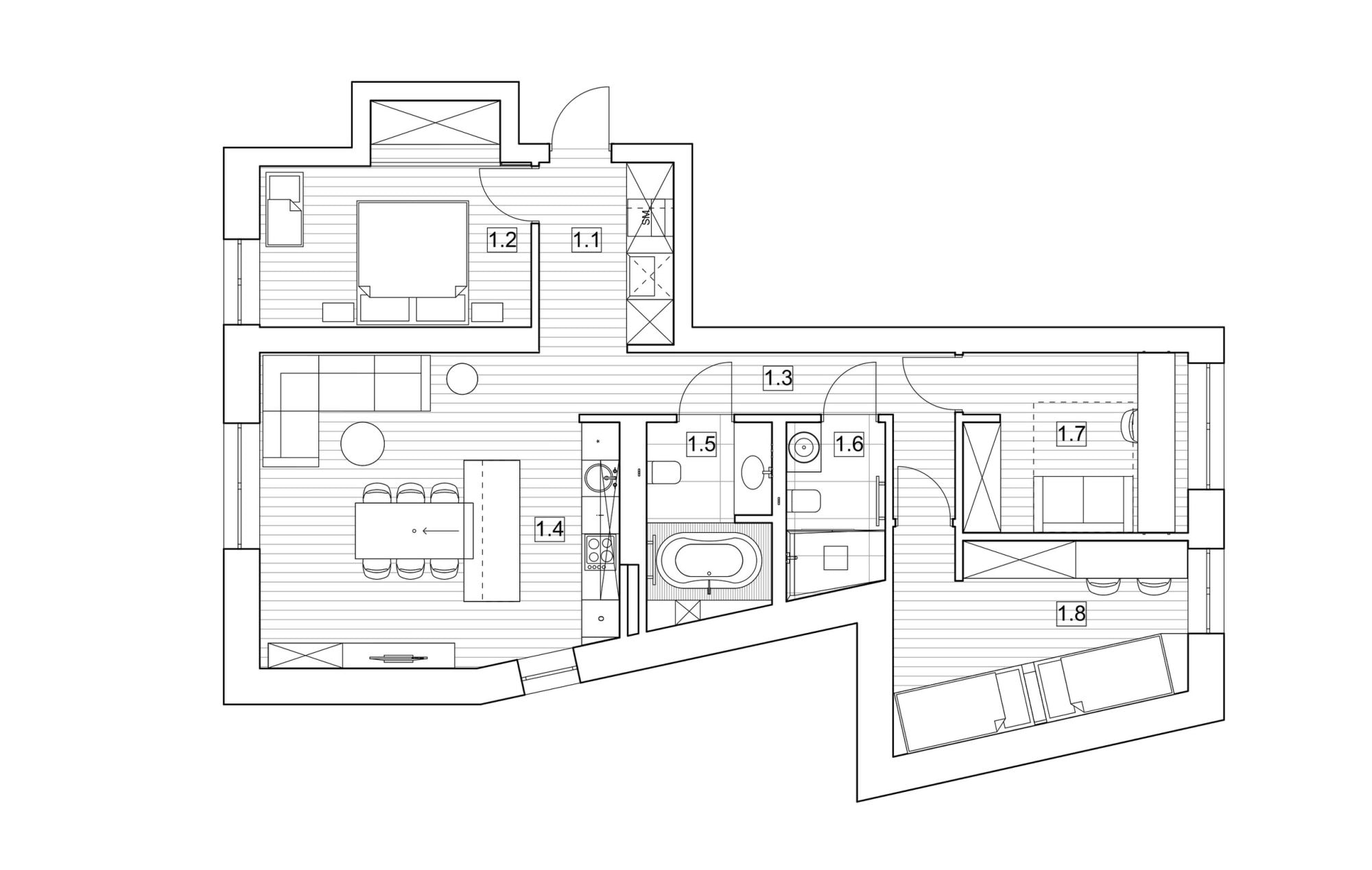
Functional diagram of this apartment creates two separate zones dedicated for adults and kids. Those two zones meet in the center of the apartment where the kitchen – dining and living area is situated. In this multipurpose use area we have decided to create a transformable space where the main element becomes the kitchen island under which the dining table is hidden – it allows both – spacious kitchen and possibility to have transformable space for bigger companies to gather and have board games events.









